SPECIALISTE FLUIDES ET SYNTHESE DEPUIS PLUS DE 15 ANS
VOTRE PARTENAIRE EN ILE DE FRANCE
VOTRE PARTENAIRE EN PRINCIPAUTE DE MONACO
INGITECH, INGITECH IDF et INGITECH MONACO mettent à votre service leurs équipes d’ingénieurs et techniciens d’études de synthèse technique pour organiser les réseaux tous corps d’état dans l’espace dans le respect des contraintes architecturales et décoratives et déterminer au plus juste les réservations et incidences sur le Gros Oeuvre.
INGITECH, INGITECH IDF et INGITECH MONACO se chargent de :
Provoquer et animer les réunions de synthèse en prenant la direction de la cellule de synthèse formée avec les entreprises
Réaliser les fonds de plans 2D ou la maquette 3D communs à toutes les entreprises techniques en les tenant à jour tout au long de l’évolution de l’étude
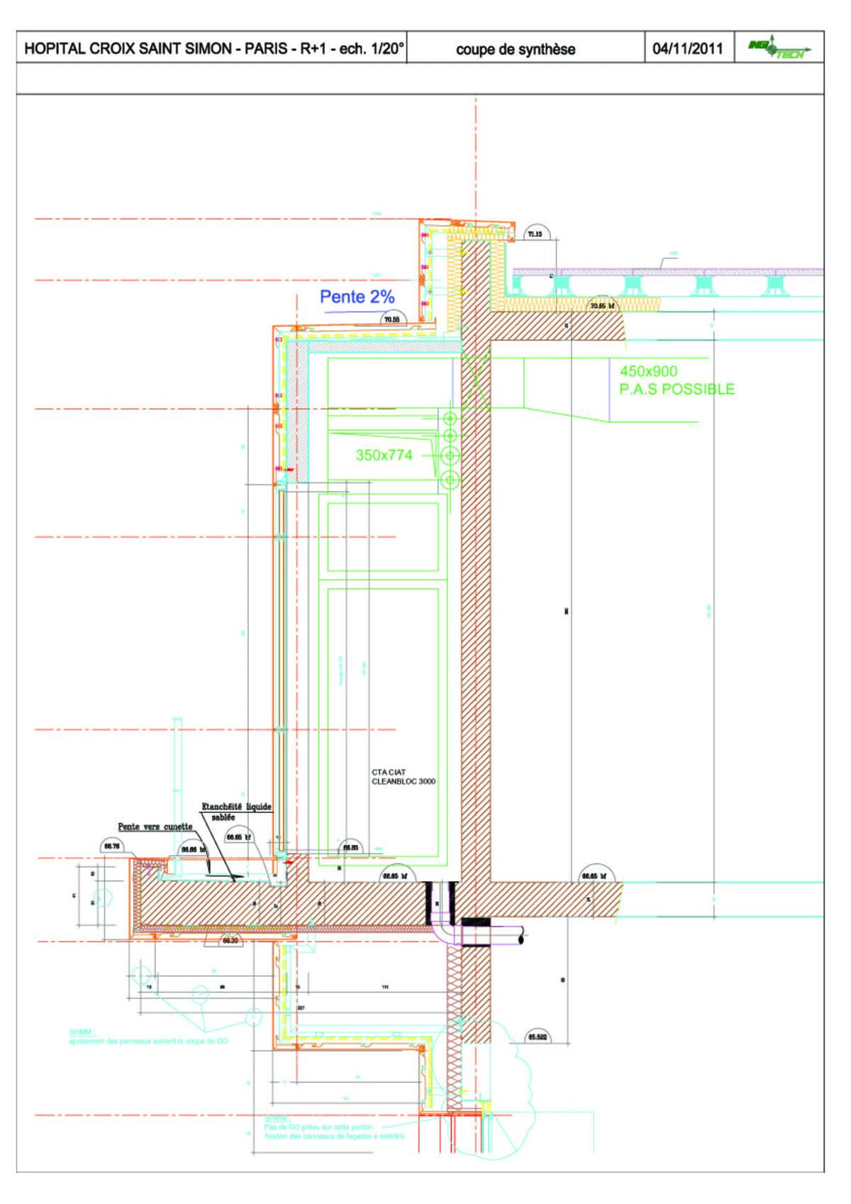
Dessiner les coupes de synthèse mettant en évidence les mises en œuvre les plus délicates et les croisements les plus complexes
Organiser l’ensemble des réseaux dans l’espace en gérant les conflits entre CET et les interfaces béton
Produire les plans de synthèse 2D ou maquettes 3D de réservations qui serviront à l’élaboration des plans de coffrage par le BET structure
La synthèse des terminaux plafonniers en fonction de calepinage des faux plafonds